Eco Tiara

Details

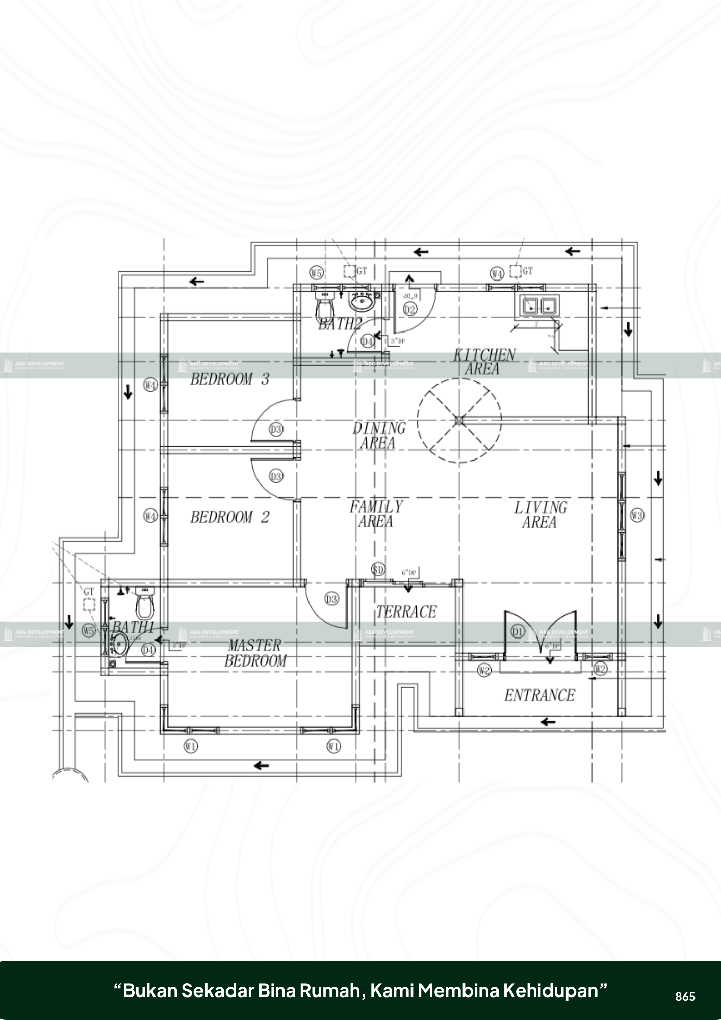
Property Type : One Storey
Architectural Concept : Contemporary Concept
Area : 865 Sqft

Internal Structure

Bedrooms : 3
Bathrooms : 2

Compare Listings

Title Price Status Type Area Purpose Bedrooms Bathrooms