Skip to content
Utama
Rumah
Portfolio
Rumah Sedang Dibina
Pakej
Pelan
Katalog
Utama
Rumah
Portfolio
Rumah Sedang Dibina
Pakej
Pelan
Katalog
CONTACT US
WHATSAPP
Utama
Rumah
Portfolio
Rumah Sedang Dibina
Pakej
Pelan
Katalog
Utama
Rumah
Portfolio
Rumah Sedang Dibina
Pakej
Pelan
Katalog
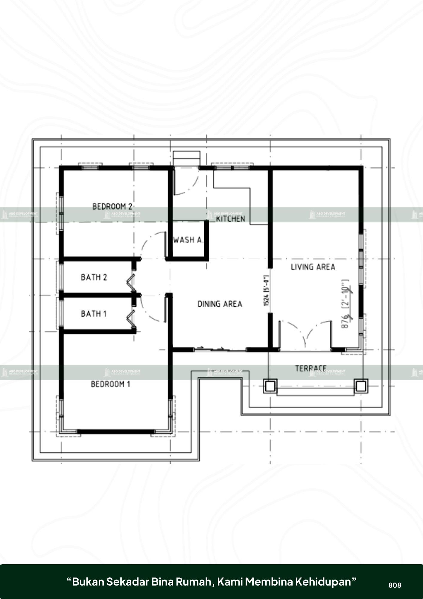
Eco Fayha
Details
Property Type
: One Storey
Architectural Concept
: English Concept
Area
: 808 Sqft
Internal Structure
Bedrooms
: 2
Bathrooms
: 2
Compare Listings
Compare
Clear
Title
Price
Status
Type
Area
Purpose
Bedrooms
Bathrooms