Eco Emily

Details

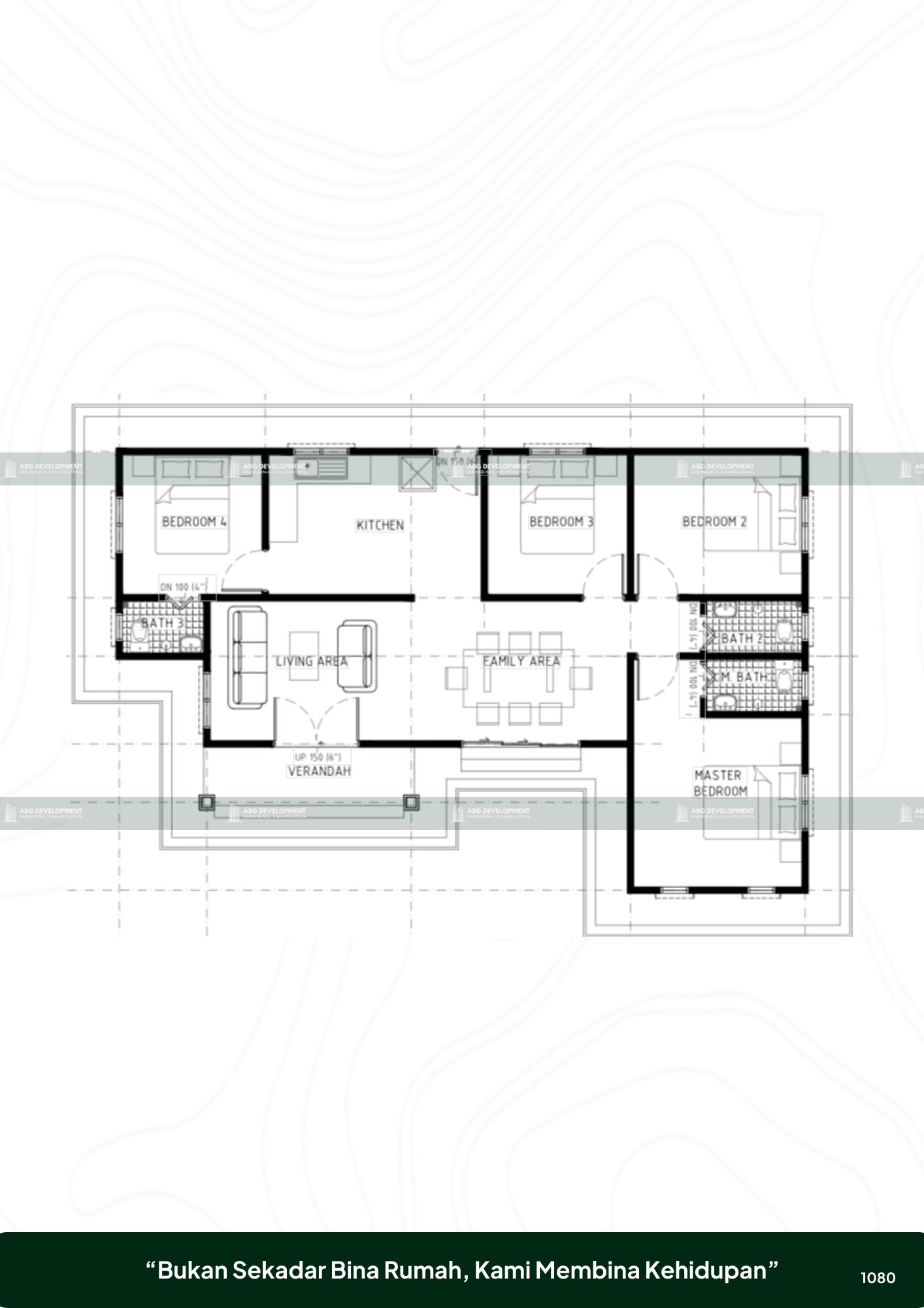
Property Type : One Storey
Architectural Concept : English Concept
Area : 1080 Sqft

Internal Structure

Bedrooms : 4
Bathrooms : 3

Compare Listings

Title Price Status Type Area Purpose Bedrooms Bathrooms